Leave a Message

Thank you for your message. We will be in touch with you shortly.

Explore Our Properties

Property Description

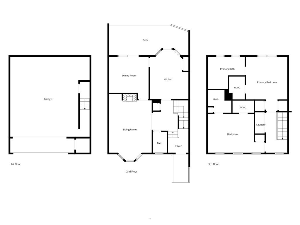
Welcome home to this beautifully maintained 2 bedroom, 2.5 bathroom townhome in the heart of Brookhaven, offering thoughtful updates throughout and peaceful, tree lined surroundings. The main level features gorgeous hardwood floors installed in 2018, fresh neutral paint, and a spacious fireside living room that flows into the bright dining area. A set of French doors leads to the expansive private deck, which was completely refinished in 2024 with new decking and fresh paint, perfect for morning coffee or evening entertaining. The sun filled kitchen offers white cabinetry, granite countertops, stainless steel appliances, a gas cooktop island, and a charming bay window breakfast nook, and includes recently replaced kitchen plumbing (spring 2025) and a new dishwasher added in fall 2024. Upstairs, both bedrooms feature walk in closets and ensuite baths. The guest bathroom was fully remodeled in 2021, while the primary suite boasts a spa inspired bathroom updated approximately 10 years ago and further enhanced with a brand new soaking tub and updated plumbing in summer of 2025. Additional improvements include new carpet installed in 2021, a new hot water heater in spring 2025, a new HVAC for the lower level in fall 2024, and an oversized two car garage with ample storage. This home is located just minutes from Town Brookhaven, shopping, restaurants, parks, MARTA, and major highways, this move in ready home offers the perfect blend of comfort, convenience, and quality upgrades in one of Brookhaven's most desirable communities featuring a pool, new dog park, and more within walking distance from your front door!

Overview

Property Status
Active Under Contract
Lot Size
1,306.8 Sq.Ft.
MLS ID
7683730
Property Type
Townhouse
Year Built
1985

Features & Amenities

Total Area
1,590 Sq.Ft.
Neighborhood
Brookhaven
Architecture Styles
Townhouse, Traditional
Water Frontage
None
View Description
Trees/Woods, Other
Stories
3
Garage Spaces
2.0
Water Source
Public
Utilites
Cable Available, Electricity Available, Natural Gas Available, Phone Available, Sewer Available, Underground Utilities, Water Available
Pool
None
Roof
Composition
Lot Features
Landscaped, Other
Parking
Drive Under Main Level, Driveway, Garage, Garage Faces Front
Heat Type
Central
Air Conditioning
Ceiling Fan(s), Central Air
Laundry Room
Laundry Closet, Upper Level
Fireplace
Living Room
Appliances
Other
Other Interior Features
Crown Molding, Double Vanity, Entrance Foyer, High Speed Internet, Recessed Lighting, Walk-In Closet(s), Other
Sewer
Public Sewer
Substructure
None
Disability Features
None
Security Features
None
Green Feature
None
Other Exterior Features
Other
Elementary School
Ashford Park
Middle School
Chamblee
High School
Chamblee
Sales Price
$500,000
Real Estate Tax
$5,291/yr
HOA
$468/mo

Downloads

1232 Brookhaven Park Place NE

Schedule a Tour

We would love to help you see this beautiful home! As a full-service brokerage, we can help you tour. Please submit an offer, and answer questions about the buying process.

Thank you

for your interest in 1232 Brookhaven Park Place NE, Brookhaven, GA 30319

1232 Brookhaven Park Place NE
Navigate
Brookhaven

Explore Brookhaven

read more

Mortgage Calculator

Estimate your monthly mortgage payment, including the principal and interest, property taxes, and HOA. Adjust the values to generate a more accurate rate.
$0,000 Your Payment 20 15 65
$0,000 Your Payment

I'm Interested in

1232 Brookhaven Park Place NE

or Contact

Exclusive Listings

Featured Properties

  • 110 Manor Ridge Drive Coming Soon

    $2,289,000

    110 Manor Ridge Drive

    110 Manor Ridge Drive, Woodstock, GA 30188

    • 5 Beds
    • 6 Baths
    • 5,423 Sq.Ft.
  • 120 Roxbury Row For Sale

    $2,200,000

    120 Roxbury Row

    120 Roxbury Row, Milton, GA 30004

    • 6 Beds
    • 8 Baths
    • 5,970 Sq.Ft.
  • 790 Vista Bluff Drive For Sale

    $2,150,000

    790 Vista Bluff Drive

    790 Vista Bluff Drive, Johns Creek, GA 30097

    • 6 Beds
    • 8 Baths
    • 6,430 Sq.Ft.
  • 0 Cox Road For Sale

    $2,100,000

    0 Cox Road

    0 Cox Road, Roswell, GA 30075

    • 5 Beds
    • 6 Baths
    • 5,000 Sq.Ft.
  • 115 Ariel Court Active Under Contract

    $2,000,000

    115 Ariel Court

    115 Ariel Court, Roswell, GA 30075

    • 4 Beds
    • 5 Baths
    • 5,756 Sq.Ft.
  • 3630 Peachtree Road NE # 2404, Atlanta Unit: 2404 For Sale

    $1,950,000

    3630 Peachtree Road NE # 2404, Atlanta Unit: 2404

    3630 Peachtree Road NE # 2404, Atlanta, GA 30326

    • 2 Beds
    • 3 Baths
    • 2,214 Sq.Ft.
  • 3630 Peachtree Road NE Unit 2404 For Sale

    $1,950,000

    3630 Peachtree Road NE Unit 2404

    3630 Peachtree Road NE Unit 2404, Atlanta, GA 30326

    • 2 Beds
    • 3 Baths
    • 2,214 Sq.Ft.
  • 13075 Addison Road For Sale

    $1,750,000

    13075 Addison Road

    13075 Addison Road, Roswell, GA 30075

    • 4 Beds
    • 6 Baths
    • 6,832 Sq.Ft.
  • 195 High Bluff Court For Sale

    $1,750,000

    195 High Bluff Court

    195 High Bluff Court, Johns Creek, GA 30097

    • 5 Beds
    • 6 Baths
    • 6,461 Sq.Ft.
  • 195 High Bluff Court For Sale

    $1,750,000

    195 High Bluff Court

    195 High Bluff Court, Johns Creek, GA 30097

    • 5 Beds
    • 6 Baths
    • 6,461 Sq.Ft.
  • 315 Waters Bend Way For Sale

    $1,350,000

    315 Waters Bend Way

    315 Waters Bend Way, Johns Creek, GA 30022

    • 5 Beds
    • 6 Baths
    • 6,607 Sq.Ft.
  • 12474 Broadwell Road Pending

    $1,299,000

    12474 Broadwell Road

    12474 Broadwell Road, Milton, GA 30004

    • 4 Beds
    • 4 Baths
    • 3,328 Sq.Ft.
  • 9035 River Run For Sale

    $1,299,000

    9035 River Run

    9035 River Run, Sandy Springs, GA 30350

    • 5 Beds
    • 6 Baths
    • 7,384 Sq.Ft.
  • 1844 Buckhead Valley Lane NE Pending

    $1,200,000

    1844 Buckhead Valley Lane NE

    1844 Buckhead Valley Lane NE, Atlanta, GA 30324

    • 5 Beds
    • 4 Baths
    • 5,249 Sq.Ft.
  • 780 Gates Mill Way For Sale

    $1,200,000

    780 Gates Mill Way

    780 Gates Mill Way, Milton, GA 30004

    • 5 Beds
    • 6 Baths
    • 4,171 Sq.Ft.
  • 14040 Providence Road For Sale

    $1,150,000

    14040 Providence Road

    14040 Providence Road, Milton, GA 30004

  • 9010 Beaver Trail Active Under Contract

    $1,100,000

    9010 Beaver Trail

    9010 Beaver Trail, Gainesville, GA 30506

    • 4 Beds
    • 3 Baths
    • 3,499 Sq.Ft.
  • 172 Racine Street SW For Sale

    $950,000

    172 Racine Street SW

    172 Racine Street SW, Atlanta, GA 30314

    • 5 Beds
    • 4 Baths
    • 2,860 Sq.Ft.
  • 12506 Broadwell Road For Sale

    $899,000

    12506 Broadwell Road

    12506 Broadwell Road, Milton, GA 30004

    • 3 Beds
    • 3 Baths
    • 3,520 Sq.Ft.
  • 1186 Lincoln Drive For Sale

    $850,000

    1186 Lincoln Drive

    1186 Lincoln Drive, Marietta, GA 30066

    • 5 Beds
    • 5 Baths
    • 3,860 Sq.Ft.
  • 1186 Lincoln Drive For Sale

    $850,000

    1186 Lincoln Drive

    1186 Lincoln Drive, Marietta, GA 30066

    • 5 Beds
    • 5 Baths
    • 5,500 Sq.Ft.
  • 1560 Oak Park Cove For Sale

    $790,000

    1560 Oak Park Cove

    1560 Oak Park Cove, Decatur, GA 30033

    • 5 Beds
    • 3 Baths
    • 3,345 Sq.Ft.
  • 325 Saddle Creek Circle Active Under Contract

    $775,000

    325 Saddle Creek Circle

    325 Saddle Creek Circle, Roswell, GA 30076

    • 4 Beds
    • 4 Baths
    • 3,224 Sq.Ft.
  • 5250 Pikes Peak Court For Sale

    $700,000

    5250 Pikes Peak Court

    5250 Pikes Peak Court, Marietta, GA 30062

    • 4 Beds
    • 3 Baths
    • 2,618 Sq.Ft.
  • 3755 Ashwood Drive SE For Sale

    $699,900

    3755 Ashwood Drive SE

    3755 Ashwood Drive SE, Smyrna, GA 30080

    • 3 Beds
    • 4 Baths
    • 2,485 Sq.Ft.
  • 3755 Ashwood Drive SE For Sale

    $699,900

    3755 Ashwood Drive SE

    3755 Ashwood Drive SE, Smyrna, GA 30080

    • 3 Beds
    • 4 Baths
    • 3,058 Sq.Ft.
  • 250 Haydens Walk Court Active Under Contract

    $675,000

    250 Haydens Walk Court

    250 Haydens Walk Court, Johns Creek, GA 30022

    • 4 Beds
    • 3 Baths
    • 2,431 Sq.Ft.
  • 447 Pig Trail For Sale

    $650,000

    447 Pig Trail

    447 Pig Trail, Cherry Log, GA 30522

    • 2 Beds
    • 3 Baths
    • 1,976 Sq.Ft.
  • 10296 Quadrant Court For Sale

    $559,900

    10296 Quadrant Court

    10296 Quadrant Court, Alpharetta, GA 30022

    • 3 Beds
    • 3 Baths
    • 2,050 Sq.Ft.
  • 3461 Salem Trace Pending

    $549,000

    3461 Salem Trace

    3461 Salem Trace, Marietta, GA 30062

    • 4 Beds
    • 3 Baths
    • 2,400 Sq.Ft.
  • 3461 Salem Trace Pending

    $549,000

    3461 Salem Trace

    3461 Salem Trace, Marietta, GA 30062

    • 4 Beds
    • 3 Baths
    • 2,400 Sq.Ft.
  • 2851 Dale Drive Active Under Contract

    $525,000

    2851 Dale Drive

    2851 Dale Drive, Marietta, GA 30068

    • 3 Beds
    • 3 Baths
    • 2,153 Sq.Ft.
  • 2851 Dale Drive For Sale

    $525,000

    2851 Dale Drive

    2851 Dale Drive, Marietta, GA 30068

    • 3 Beds
    • 3 Baths
    • 2,153 Sq.Ft.
  • 1232 Brookhaven Park Place NE Active Under Contract

    $500,000

    1232 Brookhaven Park Place NE

    1232 Brookhaven Park Place NE, Brookhaven, GA 30319

    • 2 Beds
    • 3 Baths
    • 1,590 Sq.Ft.
  • 1232 Brookhaven Park Place NE For Sale

    $500,000

    1232 Brookhaven Park Place NE

    1232 Brookhaven Park Place NE, Brookhaven, GA 30319

    • 2 Beds
    • 3 Baths
    • 1,590 Sq.Ft.
  • 658 Glenwood Avenue SE Pending

    $499,000

    658 Glenwood Avenue SE

    658 Glenwood Avenue SE, Atlanta, GA 30312

    • 3 Beds
    • 3 Baths
    • 2,188 Sq.Ft.
  • 658 Glenwood Avenue SE Pending

    $499,000

    658 Glenwood Avenue SE

    658 Glenwood Avenue SE, Atlanta, GA 30312

    • 3 Beds
    • 3 Baths
    • 2,188 Sq.Ft.
  • 0 Cox Road For Sale

    $475,000

    0 Cox Road

    0 Cox Road, Roswell, GA 30075

  • 1585 Pinebreeze Drive Active Under Contract

    $475,000

    1585 Pinebreeze Drive

    1585 Pinebreeze Drive, Marietta, GA 30062

    • 4 Beds
    • 3 Baths
    • 2,468 Sq.Ft.
  • 109 Mount Vernon Circle For Sale

    $400,000

    109 Mount Vernon Circle

    109 Mount Vernon Circle, Sandy Springs, GA 30338

    • 2 Beds
    • 3 Baths
    • 1,480 Sq.Ft.
  • 2165 Chadwick Drive Active Under Contract

    $375,000

    2165 Chadwick Drive

    2165 Chadwick Drive, Cumming, GA 30028

    • 3 Beds
    • 2 Baths
    • 2,090 Sq.Ft.
  • 811 Corundum Court For Sale

    $350,000

    811 Corundum Court

    811 Corundum Court, Stone Mountain, GA 30083

    • 5 Beds
    • 4 Baths
    • 2,624 Sq.Ft.
  • 811 Corundum Court For Sale

    $350,000

    811 Corundum Court

    811 Corundum Court, Stone Mountain, GA 30083

    • 5 Beds
    • 4 Baths
    • 3,124 Sq.Ft.
  • 4160 Ewing Road Pending

    $329,999

    4160 Ewing Road

    4160 Ewing Road, Austell, GA 30106

    • 4 Beds
    • 3 Baths
    • 4,033 Sq.Ft.
  • 4160 Ewing Road Pending

    $329,999

    4160 Ewing Road

    4160 Ewing Road, Austell, GA 30106

    • 4 Beds
    • 3 Baths
    • 4,033 Sq.Ft.
  • 1776 Willow Branch Lane NW Unit E For Sale

    $319,900

    1776 Willow Branch Lane NW Unit E

    1776 Willow Branch Lane NW Unit E, Kennesaw, GA 30152

    • 2 Beds
    • 3 Baths
    • 1,624 Sq.Ft.
  • 1776 Willow Branch Lane NW Unit: E For Sale

    $319,900

    1776 Willow Branch Lane NW Unit: E

    1776 Willow Branch Lane NW Unit: E, Kennesaw, GA 30152

    • 2 Beds
    • 3 Baths
    • 1,876 Sq.Ft.
  • 3731 Villa Springs Circle For Sale

    $299,900

    3731 Villa Springs Circle

    3731 Villa Springs Circle, Powder Springs, GA 30127

    • 2 Beds
    • 2 Baths
    • 1,346 Sq.Ft.
  • 3731 Villa Springs Circle For Sale

    $299,900

    3731 Villa Springs Circle

    3731 Villa Springs Circle, Powder Springs, GA 30127

    • 2 Beds
    • 2 Baths
    • 1,346 Sq.Ft.
  • 273 Shaded Oaks Lane SE For Sale

    $277,000

    273 Shaded Oaks Lane SE

    273 Shaded Oaks Lane SE, Marietta, GA 30067

    • 2 Beds
    • 3 Baths
    • 1,292 Sq.Ft.
View All Properties

Follow Us On Instagram